グランフォーレ日吉プレシャス

MENU

PLAN
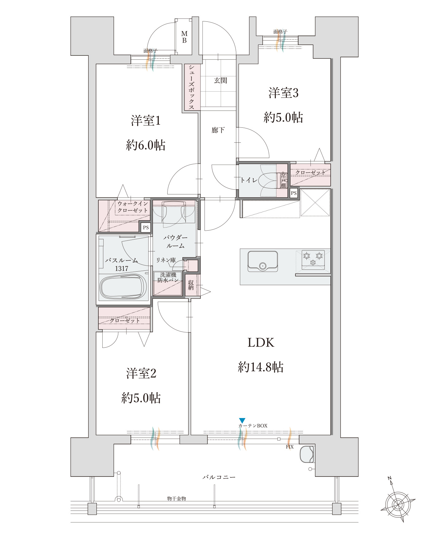
間取りimage

  • 専有面積

    65.10(約19.69坪)

    バルコニー面積

    11.52(約3.48坪)
  • WIC:ウォークインクローゼット SC:シューズクローク
  • 掲載の間取図は計画段階の図面を基に描き起こしたものであり、今後変更になる可能性があります。
ページトップへ