グランフォーレ天文館プライム
マンションギャラリー・現地案内図
来場予約
資料請求
MENU
トップ
TOP
コンセプト
CONCEPT
デザイン
DESIGN
ロケーション
LOCATION
間取り
ROOM PLAN
ギャラリー
GALLERY
設備・仕様
EQUIPMENT
物件概要
OUTLINE
ブランド
BRAND
現地案内図
LOCAL GUIDE MAP
来場予約
資料請求
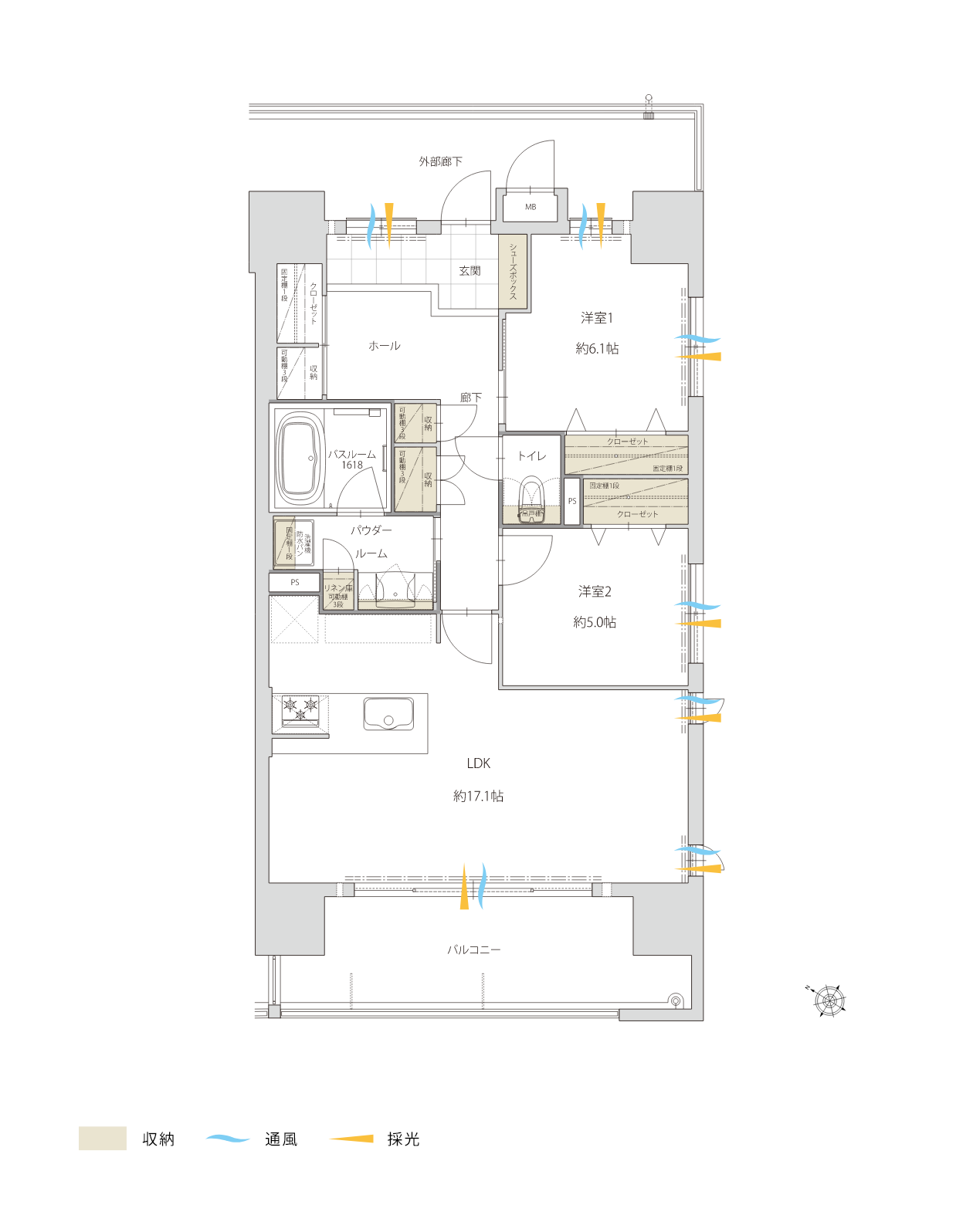
ROOM PLAN
間取り
BASIC
MENU 1
MENU 2
E
TYPE
2
LDK+ホール
専有面積
74.90
㎡(22.65坪)
バルコニー面積
13.60
㎡(4.11坪)
印刷する
一覧へ戻る
GRANFORE LINKS
0120-461-225
受付時間/10:00〜19:00
(火・水曜日定休※祝日を除く)